🔥
Zlecenie wyróżnione
To zlecenie zostało wyróżnione przez zleceniodawcę — jest priorytetowe
Budowa domu 158m2 SSO/ parterowy z użytkowym poddaszem
🔥 Wyróżnione
Budowa, Remont
Brańszczyk (mazowieckie)
08.04.2026
08.05.2026
OPIS ZLECENIA
Witam. Nazywam się Jacek, wraz z żoną szukamy ekipy budowlanej do postawienia domu do SSO w miejscowości Trzcianka, 07-221 Brańszczyk.
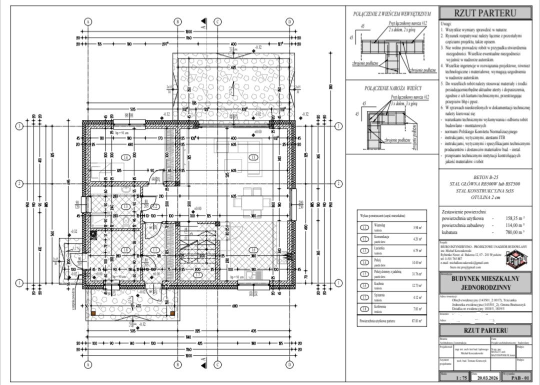
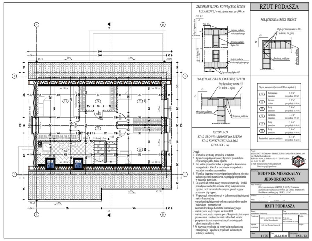
- Dom Parterowy z użytkowym poddaszem 158m2.
- prosta prostokątna bryła.
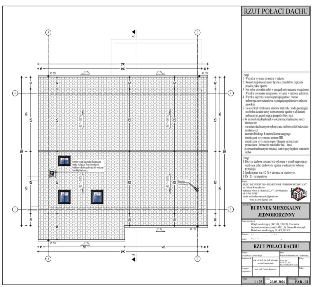
- dach prosty 2-spadowy bez lukarn.
Na chwilę obecną projekt został złożony do urzędu i czekamy na pozwolenie na budowę. Myślę, że od połowy czerwca 26.r już będzie.
W załączniku dodaje rzuty projektu.
W przypadku zainteresowania i podania bardziej szczegółowych informacji proszę o kontakt:
e-mail: [dane kontaktowe ukryte - zgłoś się przez portal]
tel.: [dane kontaktowe ukryte - zgłoś się przez portal]
Pozdrawiam🫡
- Dom Parterowy z użytkowym poddaszem 158m2.
- prosta prostokątna bryła.
- dach prosty 2-spadowy bez lukarn.
Na chwilę obecną projekt został złożony do urzędu i czekamy na pozwolenie na budowę. Myślę, że od połowy czerwca 26.r już będzie.
W załączniku dodaje rzuty projektu.
W przypadku zainteresowania i podania bardziej szczegółowych informacji proszę o kontakt:
e-mail: [dane kontaktowe ukryte - zgłoś się przez portal]
tel.: [dane kontaktowe ukryte - zgłoś się przez portal]
Pozdrawiam🫡
💰 Budżet
Do ustaleniaZgłoszenia (0)
Wykonawcy którzy zgłosili się do tego zlecenia
ℹ️ Informacja: Dane kontaktowe są widoczne tylko dla autora ogłoszenia.
Brak zgłoszeń do tego zlecenia.